目次
28歳で福岡へ移住し、築40年の物件をセルフリノベーションしながら生活。その様子をブログメディア「DIY MAGAZINE」で公開しているセーチです。2軒目3軒目4軒目に続いて、福井県にある旧耐震空き家を新耐震にフルリノベーションする過程をお届けします。
福井県の旧耐震空き家をリノベーション
こんにちは。祖父母の物件をセルフリノベーションしつつ、インテリアなどを作っているセーチです。
福井県の築55年になる旧耐震空き家。
1級建築士の元、旧耐震の空き家を新耐震に工事し、空き家を購入して活用したいと思う方々の参考になるようリノベーションしていきます。
今回は物件の現状と間取り紹介です。
福井県の築55年になる旧耐震空き家。
1級建築士の元、旧耐震の空き家を新耐震に工事し、空き家を購入して活用したいと思う方々の参考になるようリノベーションしていきます。
今回は物件の現状と間取り紹介です。
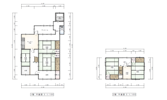
リノベ前の間取り
via
diy-magazine.jp
旧耐震の空き家、まだ残置物も残っている状態の物件を見せてもらいました。
キッチンは孤立しており、リビングであろう和室は縁側に続くように作られていて時代を感じます。
(家の前の庭が立派で、整備すれば車3台は余裕でとめられます)
キッチンは孤立しており、リビングであろう和室は縁側に続くように作られていて時代を感じます。
(家の前の庭が立派で、整備すれば車3台は余裕でとめられます)
via
diy-magazine.jp
この物件の前にも何件か空き家をみましたが、福井県はどの家も大きくてしっかりした作りです。
これだけ立派な物件が空き家状態で放置されているのはもったいないですね。
これだけ立派な物件が空き家状態で放置されているのはもったいないですね。
via
diy-magazine.jp
玄関の広さは 1820mm×1820mm の正方形。
砂壁で下の方はベニヤで覆っているような作りです。
土間は石が埋め込まれていて、昔ながらの玄関という感じがします。
砂壁で下の方はベニヤで覆っているような作りです。
土間は石が埋め込まれていて、昔ながらの玄関という感じがします。
via
diy-magazine.jp
玄関から見えるのは、縁側に続くドアと和室への入り口。
廊下の横幅が1820mmあるのでかなり広く見えます。
玄関横の4畳和室は物置として使っていたであろう広さがあり、ここはリノベーション後にトイレやシューズクロークと細かく分けて活かしたいと思っています。
廊下の横幅が1820mmあるのでかなり広く見えます。
玄関横の4畳和室は物置として使っていたであろう広さがあり、ここはリノベーション後にトイレやシューズクロークと細かく分けて活かしたいと思っています。
via
diy-magazine.jp
廊下の突き当りは7畳のキッチン。
ガスコンロ置き場が別であるタイプで祖父母の家を思い出します。
床はクッションフロアを貼ってありますが、フカフカで床材がダメになっています。
ここのキッチンは全て撤去して全てやり直す予定です。
ガスコンロ置き場が別であるタイプで祖父母の家を思い出します。
床はクッションフロアを貼ってありますが、フカフカで床材がダメになっています。
ここのキッチンは全て撤去して全てやり直す予定です。
via
diy-magazine.jp
廊下の入り口に戻ると、14畳の和室と縁側があります。
リノベ後は全部繋げて22.5畳のリビングキッチンになる予定の部屋です。
縁側の床はしっかりしているのでこのまま使えそう。
洋室にすると押入れや床の間は使えないので、全て解体する予定。
そうすると22.5畳(横幅4550mm 奥行き8190mm)の広々とした部屋になります。
新耐震にする為に、壁の筋交いを確認する必要があるので天井は全て解体します。
(天井を解体すると電気配線も全てやり直すことができるので)
リノベ後は全部繋げて22.5畳のリビングキッチンになる予定の部屋です。
縁側の床はしっかりしているのでこのまま使えそう。
洋室にすると押入れや床の間は使えないので、全て解体する予定。
そうすると22.5畳(横幅4550mm 奥行き8190mm)の広々とした部屋になります。
新耐震にする為に、壁の筋交いを確認する必要があるので天井は全て解体します。
(天井を解体すると電気配線も全てやり直すことができるので)
via
diy-magazine.jp
キッチンを奥の6畳和室側に持ってくるので、今あるキッチンに続く襖は塞いで耐震壁にする予定です。
サンルームに繋がる奥の入り口も壁にして耐震補強します。
サンルームから入る光が心地良いので、リノベーション後も光がキッチンに入るようにしたいと思っています。
サンルームに繋がる奥の入り口も壁にして耐震補強します。
サンルームから入る光が心地良いので、リノベーション後も光がキッチンに入るようにしたいと思っています。
via
diy-magazine.jp
お風呂は増築したような作りで、床の色が変わっています。
現状リビングキッチンを横断しないと使えない位置にトイレがあるので、階段近くに移動させてどこの部屋からでも行けるようにしたいと思います。
リノベ後はもとあったトイレの位置に洗面化粧台と洗濯機をおきたいですね。
洗面所はいびつな形ですが、外壁の関係でこのままの形で残すことになりそうです。
窓もそのままなので、腰高の棚を設置するなど工夫が必要です。
現状リビングキッチンを横断しないと使えない位置にトイレがあるので、階段近くに移動させてどこの部屋からでも行けるようにしたいと思います。
リノベ後はもとあったトイレの位置に洗面化粧台と洗濯機をおきたいですね。
洗面所はいびつな形ですが、外壁の関係でこのままの形で残すことになりそうです。
窓もそのままなので、腰高の棚を設置するなど工夫が必要です。
via
diy-magazine.jp
階段を上がると2階は6畳の和室2部屋と3畳の小さい洋室が1部屋あります。
2階の床は結構傷んでいて歩くのも少し怖いくらいです。床は全部交換しないといけないようです。
階段横の3畳小部屋は、広さ的に部屋として使うのは難しそうなので、納戸として活用できればと考えています。
2階の床は結構傷んでいて歩くのも少し怖いくらいです。床は全部交換しないといけないようです。
階段横の3畳小部屋は、広さ的に部屋として使うのは難しそうなので、納戸として活用できればと考えています。
耐震補強プランと施工スケジュールの打ち合わせ
via
diy-magazine.jp
大阪に戻ってから、耐震補強プランについての説明と施工スケジュールについて打ち合わせをしました。
水回りやサッシなどにお金をかける分、間取り変更は最小限にしてコストを調整。
現状だと、どの位置に筋交いが入っているか把握できない為、仮の耐震補強プランを立てて置き、解体を進めながら問題が見つかれば都度修正という感じになります。
1級建築士の先生から、耐震補強プランの説明と図面を頂きました。
残したいと言っていた天井は、配線の関係上解体しないと難しそうで、キッチンの換気扇とかの兼ね合いもあるので解体が濃厚。最初に立てた設計通りにいかない事もあるので、中古物件を購入する方は理解しておく必要がありますね。
窓の取り付け位置や換気扇の排気口など、周りの環境によっても条件が変わってくるので、図面だけはなく周辺環境もチェックが必要です。(今回は隣の敷地に高い塀があるので、日中どのくらい光が入るのか確認する必要があります)
今回の打ち合わせで大枠の流れは決まったので、あとは内装プランのみ。
解体後に変更の可能性はありますが、工事までにある程度内装プランを固めます。
解体業者のスケジュールが決まり次第、福井での作業開始です。
水回りやサッシなどにお金をかける分、間取り変更は最小限にしてコストを調整。
現状だと、どの位置に筋交いが入っているか把握できない為、仮の耐震補強プランを立てて置き、解体を進めながら問題が見つかれば都度修正という感じになります。
1級建築士の先生から、耐震補強プランの説明と図面を頂きました。
残したいと言っていた天井は、配線の関係上解体しないと難しそうで、キッチンの換気扇とかの兼ね合いもあるので解体が濃厚。最初に立てた設計通りにいかない事もあるので、中古物件を購入する方は理解しておく必要がありますね。
窓の取り付け位置や換気扇の排気口など、周りの環境によっても条件が変わってくるので、図面だけはなく周辺環境もチェックが必要です。(今回は隣の敷地に高い塀があるので、日中どのくらい光が入るのか確認する必要があります)
今回の打ち合わせで大枠の流れは決まったので、あとは内装プランのみ。
解体後に変更の可能性はありますが、工事までにある程度内装プランを固めます。
解体業者のスケジュールが決まり次第、福井での作業開始です。
解体屋さんと解体物を確認
via
diy-magazine.jp
図面を元に解体場所の確認中。
玄関横の4畳和室、玄関横、階段横、キッチン横の壁は全て解体。
×印がついている物は解体する印のようです。(事前に付けてくれていました。)
キッチンがある部屋は、リノベ後7畳洋室になるのでそのままでもいいのではと思いましたが、耐震補強をする上で、壁の中に筋交いを入れる必要があるので全て解体します。
玄関横の4畳和室、玄関横、階段横、キッチン横の壁は全て解体。
×印がついている物は解体する印のようです。(事前に付けてくれていました。)
キッチンがある部屋は、リノベ後7畳洋室になるのでそのままでもいいのではと思いましたが、耐震補強をする上で、壁の中に筋交いを入れる必要があるので全て解体します。
via
diy-magazine.jp
リビングの側面に窓を取り付けたいのですが、隣の家と隣接している為、フィックス窓を設置する予定です。頂いた図面では正方形サイズの窓を取り付ける予定でしたが、家具を置くことを考えると高い位置に光が入る窓がある方が使い勝手が良いと判断し変更しています。
(隣の家の塀があるので、窓を付けても視界が通らないので天井付近を希望しています。)
(隣の家の塀があるので、窓を付けても視界が通らないので天井付近を希望しています。)
via
diy-magazine.jp
窓は2重窓に入れ替えるので全て解体します。
外壁も張り直すので家をグルっと回って状態を確認。
屋根の塗装も必要なので、庭の伐採が終わったら足場を組む工程になりました。
(庭の植栽は全て伐採し駐車場に、雨除けに作られて波板の屋のは土台を残し屋根部分だけ撤去。)
外壁も張り直すので家をグルっと回って状態を確認。
屋根の塗装も必要なので、庭の伐採が終わったら足場を組む工程になりました。
(庭の植栽は全て伐採し駐車場に、雨除けに作られて波板の屋のは土台を残し屋根部分だけ撤去。)
これで解体前の現状確認が終わったので次回から解体作業に入ります。
まずは車を家の前に付けれるように、入り口の植栽やブロック塀を取り除き整地したいと思います。
まずは車を家の前に付けれるように、入り口の植栽やブロック塀を取り除き整地したいと思います。
このシリーズでは、旧耐震の空き家を新耐震に工事し、空き家を購入して活用したいと思う方々の参考になるよう、タグに「セーチの旧耐震リノベ」とつけているので、順を追って読めばリノベが完成するような構成です。ぜひ参考にしてくださいね。

